河南省糖心视频在线观看礦山設備有限公司

雙梁(liáng)起(qǐ)重機(jī)

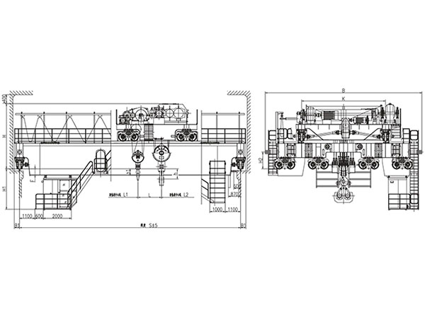
QD型(xíng)200、50t~250、50t吊鉤橋式起重機

發布時間:2020/6/30 10:56:29

QD型200、50t~250、50t吊鉤橋(qiáo)式起重機

糖心视频在线观看_糖心视频免费看_糖心视频APP污下载_TXVLOG糖心官网版APP污