網站首頁
關(guān)於中礦
產品(pǐn)世界
新聞(wén)資訊
工程(chéng)案例
售後服務
全國網點(diǎn)
聯(lián)係我們
合格(gé)證真偽查詢
產品中心
40t電磁掛梁橋式…
40t上旋掛(guà)梁橋式…
40t下旋掛梁橋式…
35~65t夾(jiá)鉗橋式起重機
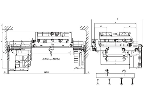
超長電磁掛梁橋式起(qǐ)重機…
鋼管智能分(fèn)配起重機
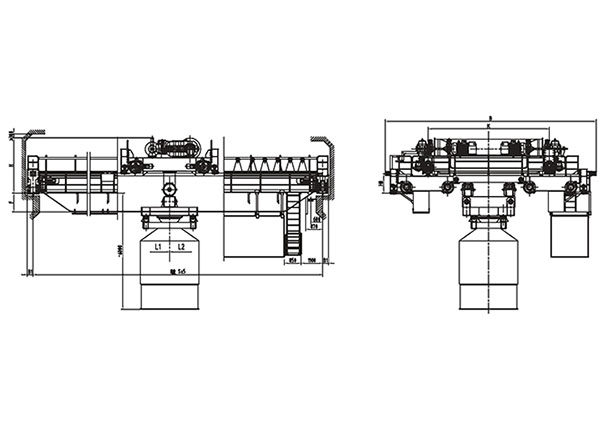
垃(lā)圾(jī)抓鬥起重機
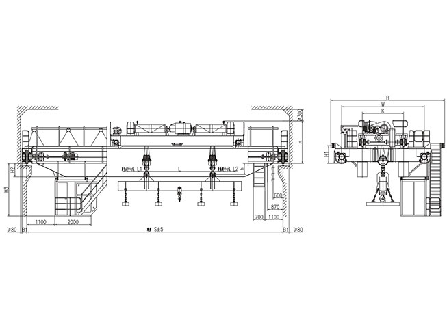
下旋轉伸(shēn)縮掛梁電(diàn)磁(cí)橋式…
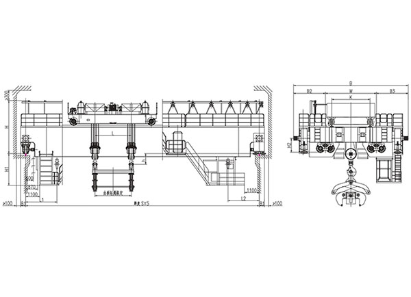
智能(néng)冶金上(shàng)料橋式起重機…
雙鉤同起同降電動葫蘆
單梁起重機
單梁起重機
總共 144 條記(jì)錄 每頁 12 條 共 12 頁 當前第 8 頁
首頁
上一頁
1
2
3
4
5
6
7
8
9
10
11
12
下一頁
尾頁
糖心视频在线观看_糖心视频免费看_糖心视频APP污下载_TXVLOG糖心官网版APP污